LOTO HOUSE
BAJA
CALIFORNIA SUR
MEXICO
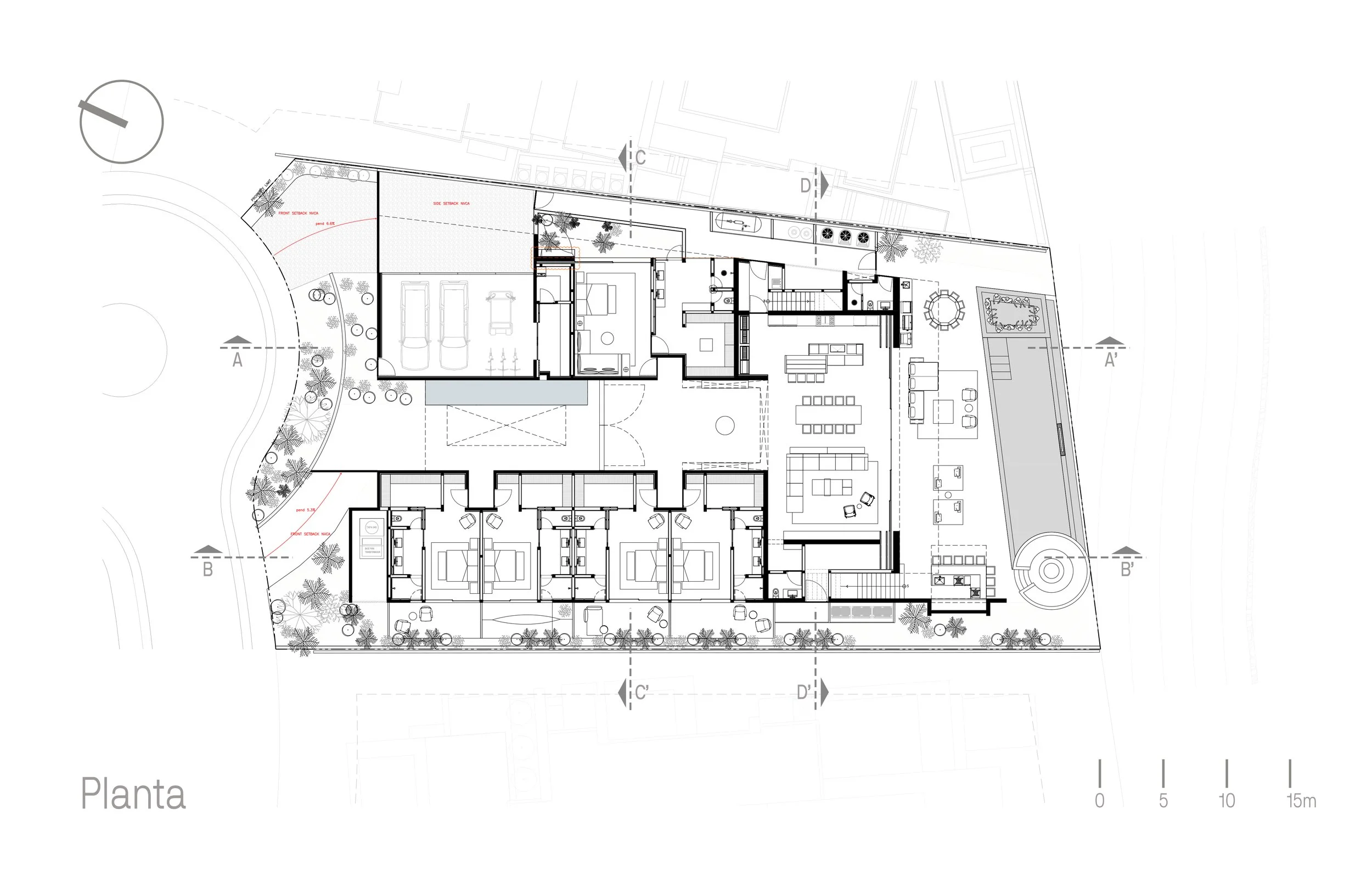
Loto 23 is a beach house located on an elevated plot near the ocean. The architectural concept involves a series of volumes organized around a central social space that opens towards the ocean, a concrete slab rests on top of the central volume, giving a sense of order and organization to the house. A textured black pigmented concrete wall was conceived as the main surrounding and enclosing element of the great social hall. Such artisanal elements as lattices, metal works, furniture, and local art are incorporated into the architecture, conceived as a singular work of craftsmanship.
On top of the concrete slab, there is a firepit and observation deck, giving users a full overview of the Cabo area. In the end, the main architectural arrangement is simple in its functionality but creates different experiences of discovery through patios, gardens, and other natural elements, culminating with an expansive view of the ocean.












SCOPE OF WORK Architecture, Interiors, FF&E
AREA 11,948 ft2 / 1,110 m2
LOCATION San José del Cabo, B.C.S. México
DATE 2024
TEAM Ezequiel Farca, Jorge Quiroga, Alonso Pérez, José María Gaona, Víctor Lima, Fernanda Rodríguez, Kannin García, Marco Antonio Zarco, Alejandra Marín, Nataly Guerra, Rubén Hernández, Roberto Gutiérrez, Iván Luz, Carlos Lara.